Zur Immobilie
EXKLUSIVE TERRASSENWOHNUNG IN BESTLAGE VON DORTMUND-KIRCHHÖRDE
HAUS-IM-HAUS-KONZEPT MIT WEITBLICK UND PRIVATSPHAERE
In begehrter Hanglage von Dortmund-Kirchhörde präsentiert sich diese außergewöhnliche Terrassenwohnung mit rund 210 m² Wohnfläche als seltene Gelegenheit für anspruchsvolle Käufer. Das im Jahr 1973 in massiver Bauweise errichtete Terrassenensemble überzeugt durch seine klare Architektur und die versetzte Bauweise mit großzügigen Außenflächen.
Das Besondere:
Jede Einheit ist vollständig abgeschlossen konzipiert – wie ein eigenes Haus im Haus. Keine klassische Etagenwohnung, kein anonymes Mehrfamilienhausgefühl. Hier wohnen Sie autark, mit maximaler Privatsphäre und eigener Struktur.
GROSSZÜGIGES WOHNEN AUF ZWEI EBENEN
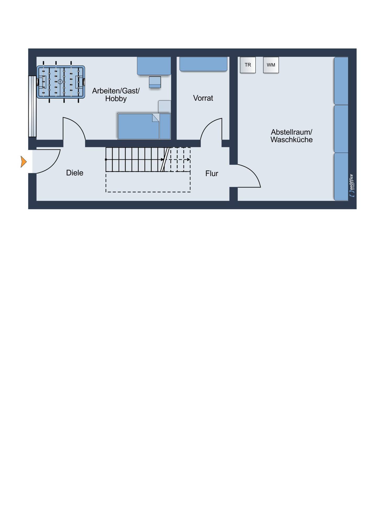
Die Wohnung erstreckt sich über zwei Ebenen und bietet insgesamt 5 Zimmer, darunter 4 Schlafzimmer und 2 Badezimmer.
Auf der oberen Ebene erwartet Sie ein lichtdurchfluteter Wohn- und Essbereich mit direktem Zugang zur weitläufigen Terrasse. Große Fensterflächen öffnen den Raum ins Grüne und schaffen ein beeindruckendes Wohngefühl.
Das Elternschlafzimmer, zwei weitere Zimmer sowie die Küche sind funktional und klar gegliedert. Ein separates WC sowie ein Badezimmer mit integrierter Sauna sorgen für zusätzlichen Komfort.
Im Untergeschoss befinden sich weitere Nutz- und Hobbyflächen – ideal als Homeoffice, Gästebereich oder Rückzugszone. Zusätzlich verfügt das Untergeschoss über einen Vorratskeller und eine große eigene Waschküche.
TERRASSE ALS ERWEITERTER WOHNRAUM
Die großzügige Terrasse ist weit mehr als nur ein Außenbereich.
Hier entsteht echter Lebensraum – sonnig, ruhig und mit Blick ins Grüne.
Durch die Hanglage und die versetzte Architektur genießen Sie ein hohes Maß an Privatsphäre – nahezu wie in einem eigenen Einfamilienhaus.
Die gepflegte Gesamtanlage unterstreicht den exklusiven Charakter dieses Ensembles.
Gerade die großzügige Doppelgarage ist in dieser Lage ein echter Mehrwert – komfortables Parken, zusätzlicher Stauraum und kurze Wege.
LAGE
Kirchhörde zählt zu den begehrtesten Wohnlagen im Dortmunder Süden. Viel Grün, gewachsene Strukturen, gute Infrastruktur und schnelle Anbindung machen diesen Standort dauerhaft attraktiv.
Ruhig wohnen – und dennoch hervorragend angebunden.
FAZIT
Diese Terrassenwohnung verbindet Großzügigkeit mit architektonischer Eigenständigkeit.
Das Haus-im-Haus-Konzept sorgt für ein Wohngefühl, das man in klassischen Eigentumswohnungen kaum findet.
Privat. Lichtdurchflutet. Substanzstark.
Ein Objekt für Menschen, die bewusst das Besondere suchen
– Heizungsanlage erneuert, ca. 2023
– Terrasse vor ca. 10 Jahren erneuert
– Hochwertige Simatec-Küche
– Dach erneuert 2021
– Gepflegter Gesamtzustand
– Große Doppelgarage mit komfortablem Parken direkt am Haus.
- Nutzungsart
- Wohnen
- Baujahr lt. Energieausweis
- 1974
- Endenergieverbrauch
- 163 kWh/(m²a)
- Energieausweis
- Verbrauchsausweis
- Energieausweis gültig bis
- 14.12.2027
- Energieeffizienzklasse
- F
- wesentlicher Energieträger
- Gas
Die Immobilie befindet sich in einer der begehrtesten Wohnlagen des Dortmunder Südens – im beliebten Stadtteil Kirchhörde.
Kirchhörde steht seit Jahrzehnten für gehobenes Wohnen in gewachsener, grüner Umgebung. Gepflegte Einfamilienhausstrukturen, hochwertige Wohnanlagen und ein ruhiges, niveauvolles Umfeld prägen das Bild dieses Stadtteils. Die Nachfrage nach Wohnraum ist hier dauerhaft hoch – nicht ohne Grund. Besonders hervorzuheben ist die unmittelbare Nähe zu weitläufigen Wald- und Grünflächen. Die umliegenden Wälder laden zu ausgedehnten Spaziergängen, Joggingrunden oder entspannten Stunden in der Natur ein. Der bekannte „Rheinische Esel“, eine beliebte Rad- und Freizeittrasse, ist schnell erreichbar und bietet ideale Bedingungen für Radfahrer, Läufer und Familien.
Trotz der naturnahen Lage ist die Infrastruktur hervorragend:
• Einkaufsmöglichkeiten für den täglichen Bedarf befinden sich in kurzer Distanz
• Mehrere Kindergärten und Grundschulen sind gut erreichbar
• Weiterführende Schulen befinden sich im nahen Umfeld
• Gute Anbindung an den öffentlichen Nahverkehr
• Schnelle Erreichbarkeit der Autobahn sowie der Dortmunder Innenstadt
Hier wohnen Sie ruhig im Grünen – und sind dennoch optimal angebunden.
Kirchhörde vereint Lebensqualität, Natur, Infrastruktur und nachhaltige Werthaltigkeit. Genau diese Kombination macht den Standort seit Jahren zu einer der gefragtesten Wohnlagen im Dortmunder Süden.
Schnellster Exposéversand:
Um Ihnen die von Ihnen gewünschten Informationen schnellstens zuzusenden, nutzen Sie am besten die entsprechenden Kontaktformulare der Immobilienplattform. Sie erhalten UMGEHEND ein Exposé, insofern Sie das Kontaktformular korrekt ausgefüllt haben.
Provision:
Die entsprechende Käuferprovision ist in diesem Angebot angegeben. Der Makler hat einen provisionspflichtigen Maklervertrag in gleicher Höhe mit dem Verkäufer abgeschlossen.
Zwischenverkauf vorbehalten
Keine Gewähr für Größe, Güte und Beschaffenheit
Bitte senden Sie uns über das Kontaktformular des Immobilienportals eine Kontaktanfrage. Hierbei sollten Ihr Vor- und Zuname, Ihre Anschrift, Ihre E-Mail-Adresse und Ihre Telefonnummer (freiwillig) angegeben sein. Nur dann kann Ihre Anfrage zügig bearbeitet werden.
Zusendung des Exposés unter Berücksichtigung der gesetzlichen Widerrufsbelehrung
Mit Ihrer Anfrage und Zusendung Ihrer Daten erklären Sie sich mit einer Kontaktaufnahme durch unser Büro (Information lt. TMG § 5) und der Speicherung der Daten lt. BDSG einverstanden.
Weitere Informationen, insbesondere über die DSGVO (Datenschutzgrundverordnung), lesen Sie bitte hier: https://www.doernhoff-immobilien.de/datenschutzerklaerung.xhtml
Ombudsmann Immobilien IVD/VPB – Informationspflicht nach § 36 VSBG
Der Immobilienverband Deutschland IVD e. V. hat mit Beteiligung des Verbraucherverbandes Verband Privater Bauherren e. V. (VPB) eine Schlichtungsstelle nach Maßgabe des Verbraucherstreitbeilegungsgesetzes (VSBG) eingerichtet. Vor der Schlichtungsstelle können u. a. Streitigkeiten zwischen Verbrauchern und Mitgliedern des IVD in einem außergerichtlichen Schlichtungsverfahren beigelegt werden.
Die Firma Dörnhoff Immobilien ist Mitglied im IVD und aufgrund der Satzung des IVD verpflichtet, gegenüber der Ombudsstelle eine schriftliche Stellungnahme abzugeben, wenn diese ein Verfahren einleitet. An Schlichtungsverfahren bei anderen Schlichtungsstellen nimmt die Firma Dörnhoff Immobilien grundsätzlich nicht teil.
Die Anschrift der Schlichtungsstelle des IVD lautet: Ombudsmann Immobilien IVD/VPB – Grunderwerb und -verwaltung, Littenstraße 10, 10179 Berlin. Weitere Informationen zur Schlichtungsstelle (z. B. weitere Kommunikationsdaten, Verfahrensordnung) erhalten Sie unter http://www.ombudsmann-immobilien.net.
Online-Streitbeilegung gemäß Art. 14 Abs. 1 ODR-VO
Sie möchten Ihr Haus oder Ihre Wohnung verkaufen? Wir führen eine kostenlose Marktwertanalyse und Sachwertberechnung für Sie durch und beraten Sie gerne.


























































